Austin Texas Fly-In Luxury Vacation Rental Home

 
Travis County City of Lago Vista Rental License 23-2776-ST-OCC

 

You Are Cleared to RELAX

 
Completed in 2025, The Flight Deck at Lago Vista Rusty Allen Airpark just outside Austin is new, fresh and ready for you, your friends and your airplanes to make lasting memories.

 

The Hangar

 
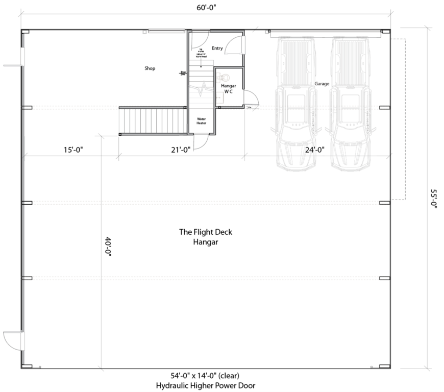
Taxi off the 3,808' public use runway and up to the 55' x 14' Higher Power hydraulic door.  Put your aircraft safely inside and unload your bags in enclosed comfort.  The main open area is 55' wide (door opening), 40' deep and 14' high clear -- plenty of room for many common turbines or 2-3 piston singles depending on how you stack 'em. There are also anchor rings embedded in the ramp outside for anything that doesn't fit.

 

The Flight Deck

 
Ascend the stairs to find 3 bedrooms - all with king beds and ensuite bathrooms, kitchen, and living rooms.  Step outside the sliding door to the largest covered outdoor deck at KRYW complete with expansive dining and lounging options and a grill ready to cook up a feast for your guests.

Inside, the well-stocked kitchen is stylish and offers counter seating for eight, designer finishes and all new appliances. 

Two bedrooms offers ensuite 3/4 bathrooms with walk-in showers.  The second bedroom offers a full bathroom with tub that is shared with the hall/kitchen.

Comfortable furnishings and design will make you want to extend your stay.

 

What to Do

 
The Flight Deck is located conveniently just a 30 mile drive to the University of Texas, Downtown Austin and just 60 miles from the Circuit of the Americas. Turo offers vehicles to transport your group in comfort. Check out our What to Do page for our curated recommendations.

 

Amenities at The Flight Deck

  • Single Family Home
  • Maximum Occupancy: 6 Adults/Children
    (Babies/Toddlers not sleeping in beds do not count toward max)
  • 3 bedroom, 3 bath
  • Bedding: 1 King, 1 King, 1 King
  • Maximum Number of Cars: 4 (2 in garage, 2 in driveway - NO street parking)
  • Maximum Number of Aircraft: 1-3 depending on size (Hangar door opening is 55' x 14') - see last photo in deck of hangar floor plan to see if  your big tin will fit
  • No Phone Service
  • Gas Grill
  • 1Gb Broadband
  • (2) Smart TVs for access to your streaming accounts

 

Rental Agreement
Copy of a SAMPLE Standard Rental Agreement - DO NOT SIGN - Actual Legal Agreement will be sent via eMail for electronic signature prior to confirmation - Actual wording of legal copy may vary from this SAMPLE. Electronically signed copy is the legal copy.
Flight Deck Short-Term Vacation Rental A[...]
Adobe Acrobat document [159.1 KB]
Print | Sitemap
Copyright 2025, RED Wings Holdings, LLC